화학, 식품, 반도체, 제약 플랜트 등에서는 유체 흐름을 의도적으로 낮게 유지해야 하는 공정이 존재합니다.
저속 유량을 유지해야 하는 사업장에서는
배관 부식·마모 방지, 특정 화학 물질 취급, 환기 시스템 최적화 등 다양한 이유로 유속을 제한하는 경우가 생기는데
저속 유량 측정 시 유량계 센서가 감지하는 신호가 약해져 정확한 측정이 어려워지고 공정 신뢰도가 크게 떨어질 수 있습니다.
이와 같은 환경에서 안정적인 계측을 위해서 저유량 측정에 최적화된 유량계측기가 필요합니다.

저속 유량을 유지해야 하는 이유
저유량 환경에서 안정적인 계측은 단순한 데이터 확보를 넘어 원재료 절감, 품질 관리, 공정 안전성을 확보하는 데 핵심적인 역할을 합니다.
- 배관 부식 및 마모 방지 : 과도한 유속으로 인한 손상 최소화
- 특수 화학 물질 취급 : 알칼리·강산류의 안전한 운전
- 플라스틱·고무 라이닝 배관 보호 : 3 m/s 이하 유속 유지 필요
- 산업 환기 시스템 : 적절한 유속 유지로 소음·오염 문제 해결
공정 개요 – 저속 유량 관리가 필요한 화학약품 주입 공정
[화학 물질 배관] → [저유량·미세 주입] → [세밀한 반응 제어] → [공정 안전·품질 확보]
화학약품을 미세하게 주입하거나 저속으로 안정적으로 투입해야 하는 공정에서는,
과도한 유속보다 정밀하고 일정한 유량 제어가 더욱 중요합니다.
- 소량의 약품도 균일하게 분배하여 반응 효율 최적화
- 저속 주입을 통해 배관·설비 손상 방지
- 정밀 제어로 제품 품질 안정성과 공정 안전성 확보
이러한 환경에서는 저유량 전용 센서와 함께,
장기적으로 신뢰성 있는 계측 솔루션이 필수적입니다.
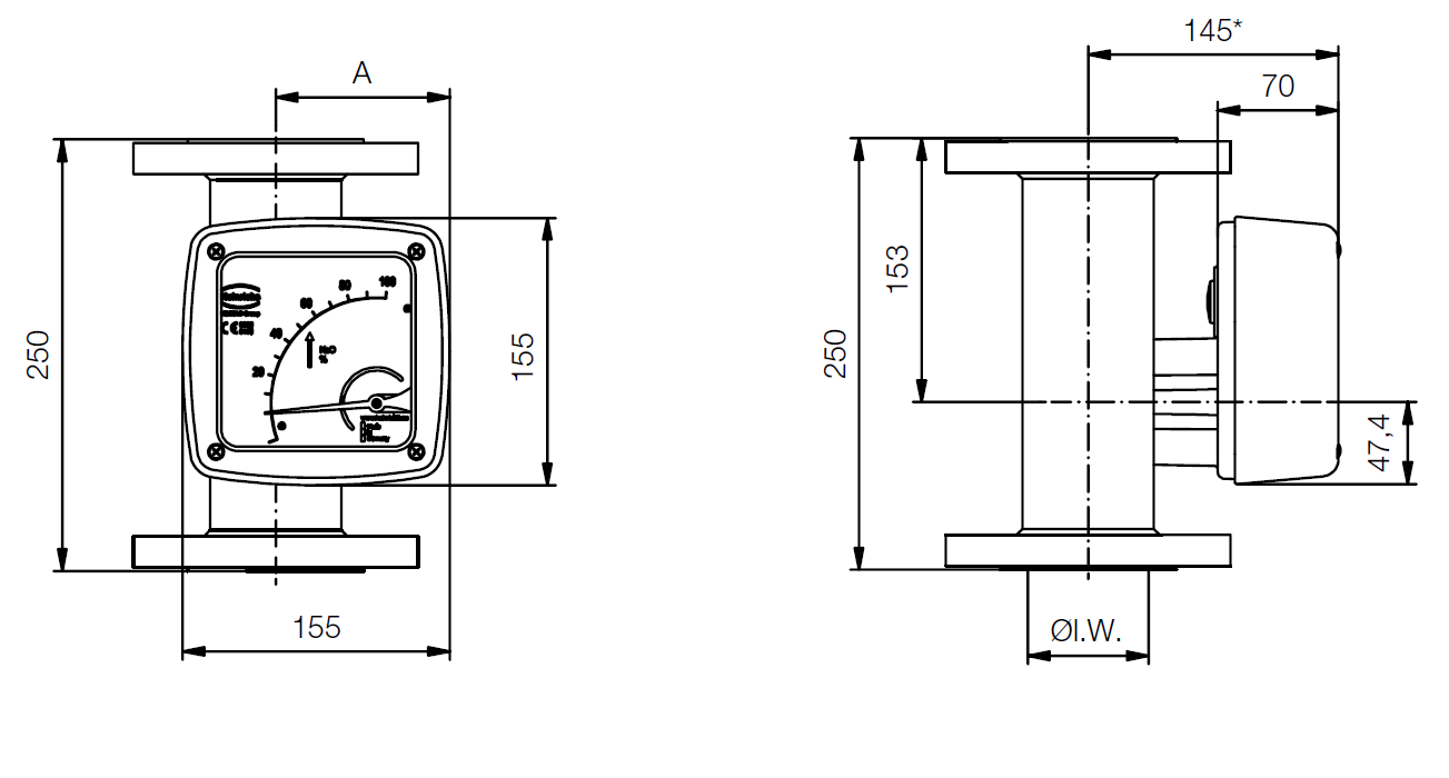
추천 솔루션: KOBOLD 금속 면적식 유량계 BGN
저속 유량 계측을 위해 금속 면적식 유량계(Metar Variable Area Flow Meter)를 제안합니다.
BGN 가변 면적 유량계는 연결부, 계량 링(meter ring), 원뿔형 부유자로 구성되었으며,
부유자 내부에 자석이 내장되어 있어, 그 위치가 캡슐화된 추종 자석(follow magnet)으로 전달됩니다.
자석은 지침축(pointer axle)에 부착되어 유량 값을 눈금으로 변환합니다.
가변 면적식 구조로, 작은 유량 변화에도 민감하게 반응하며 까다로운 환경에서도 안정적인 계측이 가능합니다.

주요 특장점
- 액체 및 기체의 유량 측정, 모니터링, 조정 및 제어
- 저유량, 고온·고압 대응
- 자기저항 방식 신호 전송 (Magneto-resistive signal transmission)
- 유량을 부피 단위(Volume) 또는 질량 단위(Mass per unit time)로 표시
- 프로세스 모니터링 및 제어를 위한 전기적 부가 장치와 연동 가능
적용 분야
- 저속 유량 화학 플랜트 (농황산, 아민, 알칼리 등)
- 부식·마모 방지 목적의 특수 배관 시스템
- 고온·고압 환경의 안정적인 유량 모니터링
| KOBOLD 금속 면적식 유량계 BGN 사양 | |
| 재질 | Stainless Steel 316L/316Ti, Hastelloy® C-22, PTFE, Monel®, Titanium (특수 재질 가능) |
| 프로세스 연결 | 플랜지 (EN 1092-1, ASME B16.5, DIN 2512, JIS, NPT, Screw 등) |
| 공정 압력 | 표준: PN40 (BGN-S/H), PN16 (BGN-P) 옵션: 최대 600 bar |
| 공정 온도 | -40 ~ +200℃ (BGN-S/H, 무출력) -40 ~ +150℃ (BGN-S/H, 전기 출력) -40 ~ +350℃ (옵션 V/H/W) -40 ~ +125℃ (BGN-P) |
| 주변 온도 | -40 ~ +80℃ |
| 정확도 (액체) | ±1.6% FS (BGN-S/H) ±2.0% FS (BGN-P) |
| 정확도 (기체) | ±1.8% FS (BGN-S/H) ±2.2% FS (BGN-P) |
| 반복성 | ±0.5% FS |
| 추가 오차 | ±0.2% (트랜스미터 포함 시) |
| 인증 | ATEX (IECEx) 2014/34/EU, HMT21-4111X |
| 방폭 등급 | II 2G Ex h IIC T1…T6 Gb II 2D Ex h IIIC T85°C/T350°C Db |
| KOBOLD 금속 면적식 유량계 BGN 디스플레이 사양 | |
| 디스플레이 재질 (Display Material) | 알루미늄(stove-enamelled), 옵션: 스테인리스 스틸 |
| 디스플레이 전기 출력 (Electrical outputs) | 유도형 스위치 SJ 3,5-N NAMUR (표준) 유도형 스위치 SJ 3,5-SN NAMUR (안전 설계, 요청 시) 최대 2개 마이크로 전환 스위치 (Umax: 175VDC, Imax: 0.25A, Pmax: 5W) 기타 옵션 제공 |
| 디스플레이 주변 온도 (Ambient temperature) | -40℃ ~ +80℃ (리밋 스위치 없음) -40℃ ~ +65℃ (리밋 스위치 있음) |
| 디스플레이 보호 등급 (Protection) | IP65 (알루미늄 하우징) IP65, IP66, IP67 (스테인리스 스틸 하우징) |
| 트랜스미터 전원 공급 (Power supply) | 14 - 30 VDC |
| 트랜스미터 출력 (Output) | 패시브, 갈바닉 절연 |
| 트랜스미터 전류 (Current) | 4 - 20 mA |
| 트랜스미터 주변 온도 | -40℃ ~ +70℃ |



납기 & 문의
재고가 있는 모델은 1주일 이내 출고 가능하며, 약 4주 소요됩니다.
제품 모델에 따라 금액이 다르므로, 견적 요청 주시면
현장에 맞는 최적 솔루션을 제안드립니다.
저속 유량 사업장은 계측 신호가 약하고 불안정해 정확한 데이터 확보가 쉽지 않은 환경입니다.
이를 해결하기 위해서는 배관 최적화, 저유량 전용 센서가 필수적입니다.
금속 면적식 유량계는 저속·저유량 계측은 물론, 고온·고압 및 부식 환경에서도 안정적인 성능을 발휘합니다.
씨엠솔루션의 전문 엔지니어와 상담하시어 귀사의 공정에 가장 적합한 솔루션을 확인해 보시기 바랍니다.

'플랜트 계측 솔루션' 카테고리의 다른 글
| 방폭 지역의 미세한 입자 분체 재고 측정 솔루션 (0) | 2025.10.16 |
|---|---|
| 끊임없이 변화하는 탱크의 액체 및 고체 레벨 측정 (0) | 2025.09.25 |
| 가스플랜트 화학기체 공급 시설의 정확도 높은 유량 측정 방법 (0) | 2025.09.11 |
| 공기질 관리를 위한 파티클 카운터, 먼지 농도 모니터링 솔루션 (0) | 2025.09.02 |
| 계측장비 헌팅(Hunting) 문제, 어떻게 해결할까? (1) | 2025.08.26 |